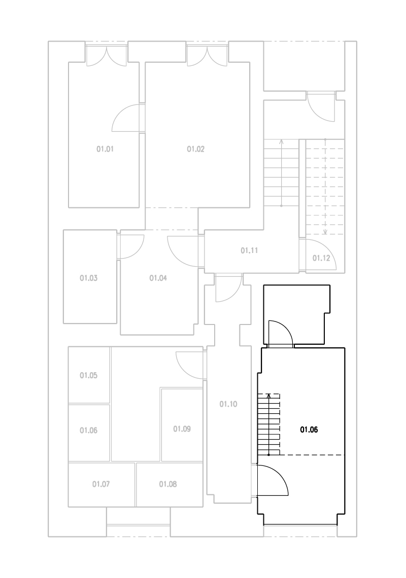
01.06Ateliér
1.09Ateliér patro v I. NP

Ateliér č.2

Dispozice

1+1

Podlahová plocha

Podl. plocha

27,3 m2

Umístění

1. NP a 1. PP

Balkón/terasa

-

Zahrada

společná zahrada

Dostupnost

Prodáno

Umístění v budově

Spojte se s námi

Máte zájem o nové bydlení nebo potřebujete více informací? Neváhejte nás kontaktovat a dohodnout si osobní schůzku, budeme se vám rádi věnovat.